Wedding & Reception - Medium
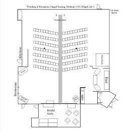
Event starts out as a chapel configuration. Then after a short break (within 20-30 minutes), we configure the room for the reception/banquet.
Click on the camera to view our photo galleries!

Event starts out as a chapel configuration. Then after a short break (within 20-30 minutes), we configure the room for the reception/banquet.
Click on the camera to view our photo galleries!